co321 fed up over 1,000 dollars wasted

davidsisler

Member
Joined
Jan 14, 2023
Posts
7
Location
oakland md
03 silverado 4 button push button awd 2wd 4wd 4lo im getting code co321 it has new lifetime warranty encoder new push button new front axle acuator took it to gm shop they replaced a part of the orange power wire that ran from trec fuse from fuse block to encoder plug bam 4 wheel drive worked plowed with it a week then just like that service 4wd lite again all my lites are working on selector but i can only change functions when i first start the truck and again it will change but being the co321 code again the transfer case lock circuit malfunction it wont actually lock into any mode other than 2wd and cant change any selection on the buttons after immediate startup and like i said it wont change after startup and immediatly changing selections then just stays where its at cant change it unless shut the truck off and start it back up and either way it wont fully lock into 4wd because of the lock malfunction if anyone can help out youd be a godsend as this is my plow truck and i really need my rig thanks in advance
 
Welcome to GMT Nation...

Some Performance Insights... Some Diagnostics and ... Some Recommended Fixes for a 2009 Silverado, But MAY assist in your present situation:

DTC C0321 01: Transfer Case Lock Circuit Short to Battery
DTC C0321 02: Transfer Case Lock Circuit Short to Ground
DTC C0321 04: Transfer Case Lock Circuit Open
DTC C0321 08: Transfer Case Lock Circuit Signal Invalid

The transfer case shift control module controls the transfer case lock solenoid. The transfer case lock solenoid is released by being energized. This is accomplished by grounding the lock solenoid control circuit during gears shifts, and in the AUTO 4WD mode. Locking action is applied when power or ground are taken away from the lock solenoid, the transfer case motor is prevented from moving. The system is capable of providing a 2HI, 4HI and 4LO lock-up without the need of additional vehicle power to hold the transfer case in these positions. This DTC detects an open lock solenoid coil, open motor lock control circuit, or an open battery positive voltage circuit, or a short to voltage or ground on the lock solenoid control circuit.

Circuit/System Testing:

The battery positive voltage circuit and the lock solenoid control circuit must be tested for opens, shorts to ground, shorts to voltage, and high resistance. This can also result from an electrically faulted solenoid.

With the ignition on check which DTC is set. If DTC C0321 is set with failure type byte 04 then do the following:

The transfer case lock is unable to hold during a hold test and the transfer case actuator will need to be replaced, and the motor learn procedure performed.

If this is not the case continue to the next step:

Disconnect the transfer case actuator, turn on the ignition and with a DMM check the battery positive voltage circuit for battery voltage at the transfer case actuator.

If battery voltage is not seen then repair the battery positive voltage circuit for an open or high resistance.

If the circuit checks out proceed to the next step:

Disconnect the transfer case control module connector X2 and check the circuit for an open, high resistance, short to ground, or short to voltage. If condition is found repair the circuit or inline connector 109 as necessary. If the condition is not found refer to component testing.

Sourcing:


Check HERE for a FREE Digital OEM Service Manual you can Download and then refer to for access to the Wiring and Component Circuitry Diagrams to help with your wiring isolation testing and diagnostics:

 
Last edited:
  • Like
Reactions: gmcman
thanks someone else gave me the same page im thinking it is the tan wire the comes out of the encoder where does it run to ...i cant find any wiring schematics and also what should the volts be that runs through that wire and do i test it pluged in or unpluged ignition switch on or off
 
i have also already had to replace most of the orange power wire so it makes me wonder about the tan lock solenoid wire like i said my encoder has a lifetime warrenty but i dont know where the tan wire goes to from the encoder plug as everythings inside the wire loom and didnt wana gut it enless i had to
 
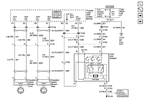
I'll see if I can pull it up in the wiring diagrams but from memory I would say the orange wire brings fused power to the transfer case shift encoder motor lock and also the TCCM.

The tan wire should run from the transfer case shift encoder motor to the TCCM.
 
Here is a similar Wiring Diagram to compare against your Wiring Color Scheme:

EDIT: OOooooops...!!! Wrong Diagram... The CORRECT One is Further Down Below...
2012-01-19_234652_865607.gif

Please know that whenever there is suspicious or inexplicable electrical phenomena occurring... be aware that Mice and Rats are quite attracted to the areas under and adjacent to the Under Hood Fuse Block. BEWARE ... Use an N-95 Face Mask and 11 Mil Nitrile Gloves to avoid getting or inhaling a Fatal Dose of HANTA Virus deposited under there from the North American Deer Mouse courtesy their Urine & Feces and Nesting Areas:


This Video is another example of a *Pinched Wire* issue that might also be what's going wrong:


And finally from Eric "O" at SMA (South Main Auto) a similar 4WD Issue in the SAME Location:

SILVERADOTCCMCIRCUIT9.jpgTECH2C0321CODE.jpg

 
Last edited:
  • Like
Reactions: gmcman
Thanks for the Correction @TJBaker57 ... Tom... I Copped a "CORRECT Screen Print" of the proper TCCM Encoder Circuit being shown and used by Eric "O" for Diagnostics via his Tech 2 from his On Topic Video and dropped it just above this YouTube Video in my last Post... :>)

"If You're Nearly Correct.... You're Precisely... Wrong..."
 
Last edited:
You have to check for proper continuity on all the wires from the TCCM to the encoder motor. Since you said you already replaced part of the power wire, it's quite possible the rest is at fault.
 
Last edited:
You have to check for proper continuity on all the wires from the TCCM to the encoder motor. Since you said you already replaced part of the power wire, it's quite possible the rest is at fault.
I re-replaced the power wire a shop only did from the fuse block to right under drivers door i then replaced from fuse block clear to the encoder plug also got in the truck this morning have full power lights are on .. on the switch I just can’t switch between functions
 
Please re-read what I wrote:

You have to check for proper continuity on all the wires from the TCCM to the encoder motor. Since you said you already replaced part of the power wire, it's quite possible the rest is at fault.
There is more than one wire. Follow the wiring diagrams. They are available from the manuals (link in my signature)
 
  • Like
Reactions: gmcman
Thank you all you guys are awesome I wound up unplugging the whole harness pulling it down and out clear to where it went through my body mount is apparently these wire looms rub the body mount pretty bad the tan signal wire was rubbed raw and had blue corrosion all over cut the nasty part out found good wire connected it taped the looms secured everything threw some extra tape around looms to give some extra protection and put it all back together and bam life’s good works like a dream needless to say it has a new encoder switch and front actuator all for two corroded wires that the body mount rubbed through thanks for everything again I woulda never found it if it wasn’t for the help and schematics
 
Yes even when the encoder or front actuators quit on these truck ur better off to check the wires that run Through where your body mount is located if your like me body mount is shot allows just enough body movement to rub wires and corrode also where the front actuator wires route is another spot they like to corrode Chevrolet coulda designed better but what do we know they gota make money to….
 
And for any Owners of GMT360s drifting this way regarding the C0321 Code ... Visit THIS Link at Post# 6 for all that is involved and well covered by "Ivan The Terrible" The MAN From PHAD:

 

Forum Statistics

Threads
24,098
Posts
646,810
Members
20,351
Latest member
WTB927240

Members Online