gruvedaddy
Member
- Joined
- Dec 28, 2011
- Posts
- 30
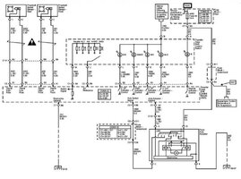
So, here's the rundown of what's been going on , what i've done and where i'm at. The Service 4WD light has been on steady while in 2WD in all kinds of weather, rain, snow or shine, for about a year now, but occasionally goes away and 4WD does work, but then light comes back on and away goes 4WD. The 2WD selector switch light is on steady as it should be, but I changed it with a new switch as it was only 20$ or so, but the problem remained. Then i bought and installed a new encoder motor, but the problem remains. Didn't want to keep throwing cash into parts that i apparently don't need , so i bit the bullet and had the truck scanned with the Tec 2 scan tool for $100. They came up with front differential actuator is not engaging, and recommended replacing it. So i purchased a new actuator and swapped it out , but guess what? The problem remains.
The intermittency is what bothers me. I am an Electrician and know intermittent issues are typically an electrical connection issue, but i'm not sure how to even start to troubleshoot this. I think my next step is checking the connectors on the TCCM to see how those look. The mechanics said the Tec 2 didn't see any faults other than the actuator not engaging, no TCCM codes or anything else. But, of course, they weren't able to give me a print out of what the tool found. The only bright spot in all this , i guess, is that i did all this swapping out myself and saved 600$ or so in labor alone! Thanks to all who contribute here, your knowledge is invaluable. Now, what's my next step? Would the fuse pull trick allow the TCCM to see the actuator?
The intermittency is what bothers me. I am an Electrician and know intermittent issues are typically an electrical connection issue, but i'm not sure how to even start to troubleshoot this. I think my next step is checking the connectors on the TCCM to see how those look. The mechanics said the Tec 2 didn't see any faults other than the actuator not engaging, no TCCM codes or anything else. But, of course, they weren't able to give me a print out of what the tool found. The only bright spot in all this , i guess, is that i did all this swapping out myself and saved 600$ or so in labor alone! Thanks to all who contribute here, your knowledge is invaluable. Now, what's my next step? Would the fuse pull trick allow the TCCM to see the actuator?


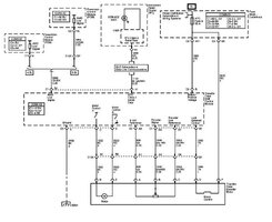
The Tech 2 scan tool showed the front actuator not engaging. I'm thinking this fuse block issue could be the culprit.
What i'm going to do next is locate the brown wire you mentioned coming out of the fuse block , snip it , and re-feed it through an inline fuse of the same amperage. I also want to do the same thing with the HVAC feed off fuse 44, do you happen to know off hand which wire that may be? I do have my meter here now , so i'll use it instead of the test light. Time to fire up the garage heater and get busy. I'll check back in a bit. Thanks again Roadie!
Typically the problem would return after a couple days in the past. But this time i think we got it! Thanks again Roadie! 